Bouwgrond | Tielen

Omschrijving

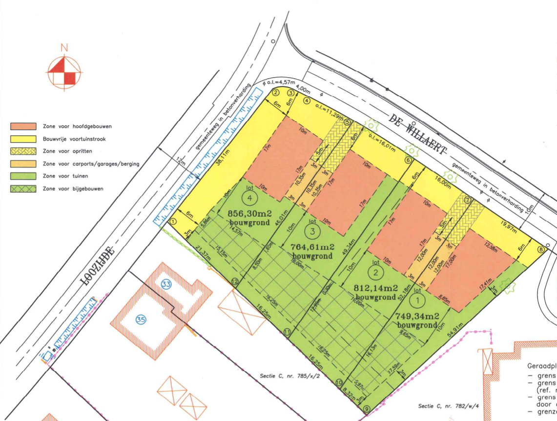
Bouwgrond van 812,14 m˛ geschikt voor het bouwen van een vrijstaande woning, deel uitmakend van een kleine verkaveling te Tielen.

Het perceel is rustig gelegen nabij het centrum van Tielen in een groene omgeving.

Perceelbreedte vooraan van 16,00 meter en een perceeldiepte van circa 50 meter.

Het perceel is geschikt voor het bouwen van een open bebouwing met een gevelbreedte van circa 10 meter, bouwdiepte gelijkvloers 17 meter, 13 meter 1ste verdieping en 9 meter onder dak. Zowel zadeldak als platdak zijn mogelijk.

In de zijtuinstrook ter hoogte van lot 1 is een garage of carport toegelaten en achteraan is een zone voor bijgebouwen voorzien met een maximale oppervlakte van 75m˛.

De loten zijn gelegen op wandel- en fietsafstand van het centrum van Tielen, winkels, scholen en het treinstation.

Troeven:
•Groot perceel.
•Vrijstaande bebouwing.
•Uitstekende zuidwest oriëntatie met zon vanaf de middag.
•Treinstation en centrum op fietsafstand.
•Bijgebouw mogelijk.

Indien u meer informatie wenst (verkavelingsplan, verkavelingsvoorschriften, …) of een plaatsbezoek wenst, tel. 014715008 of e-mail: info@vastgoedpicavet.be
Adres:   De Willaert lot , bus 2 - 2460 Tielen
Pand op kaartOmgeving pand

Overige info

Orientatie tuin  ZW
Aantal garages  1
Aantal carports  1
Aantal parkeerplaatsen  2
Afstand tot openbaar vervoer  350 m
Afstand tot winkels  900 m
Afstand tot school  500 m

Geografische ligging

Adres  De Willaert lot , bus 2 - 2460 Tielen
Vrij op  bij akte na betaling

Bebouwing

Bebouwing  open
Grond oppervlakte  812,14 m˛
Woonoppervlakte  390 m˛
Perceelbreedte  16 m
Perceeldiepte  50,50 m
Gevelbreedte  10 m

Ruimtelijke ordening

Stedenbouwkundige vergunning verkregen    Niet ingegeven - Verkavelingsvergunning bekomen.
Optionele informatie    Woongebied
Dagvaardingen uitgebracht    Niet ingegeven
Voorkooprecht op dit goed    Niet ingegeven
Verkavelingsvergunning verkregen    Niet ingegeven
Print deze pagina e-mail deze pagina vraag meer informatie Pand delen